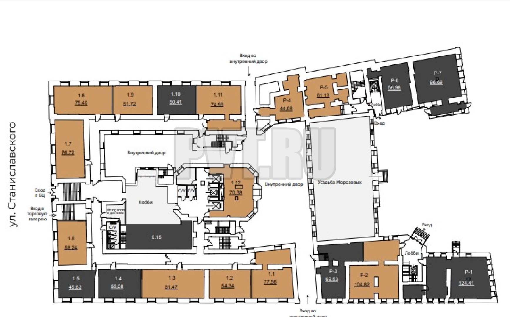
Офис, 77,6 м², открытая планировка, требуется отделка

35 726 145,99 ₽

460 625,91 ₽/м²

Связаться с нами

Коммерческие условия

Налогообложение

НДС

A

Класс

9

Налоговая

2028 г.

Год постройки

12 900 м²

Общая площадь

7 200 м²

Полезная площадь

5

Количество этажей

Вы можете записаться на просмотр интересующей вас площади