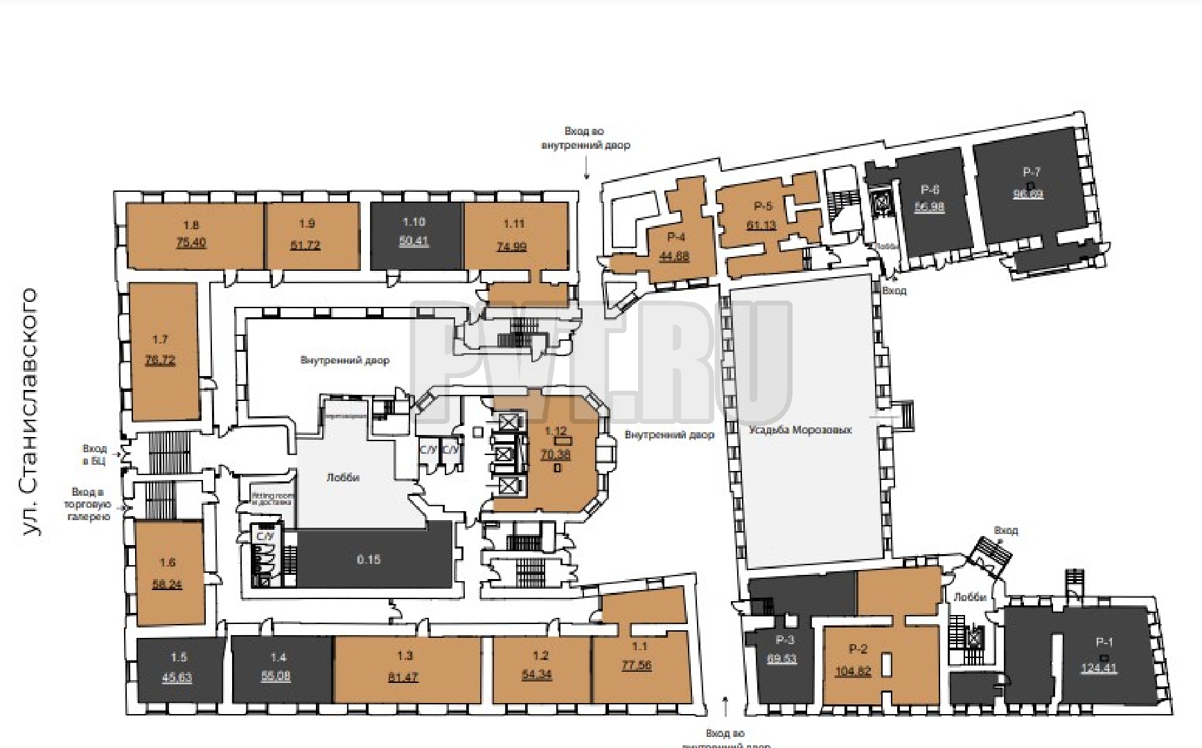
Офис, 51,7 м², открытая планировка, требуется отделка

25 397 189 ₽

491 051,60 ₽/м²

Связаться с нами

Коммерческие условия

Налогообложение

НДС

A

Класс

9

Налоговая

2028 г.

Год постройки

12 900 м²

Общая площадь

7 200 м²

Полезная площадь

5

Количество этажей

Вы можете записаться на просмотр интересующей вас площади