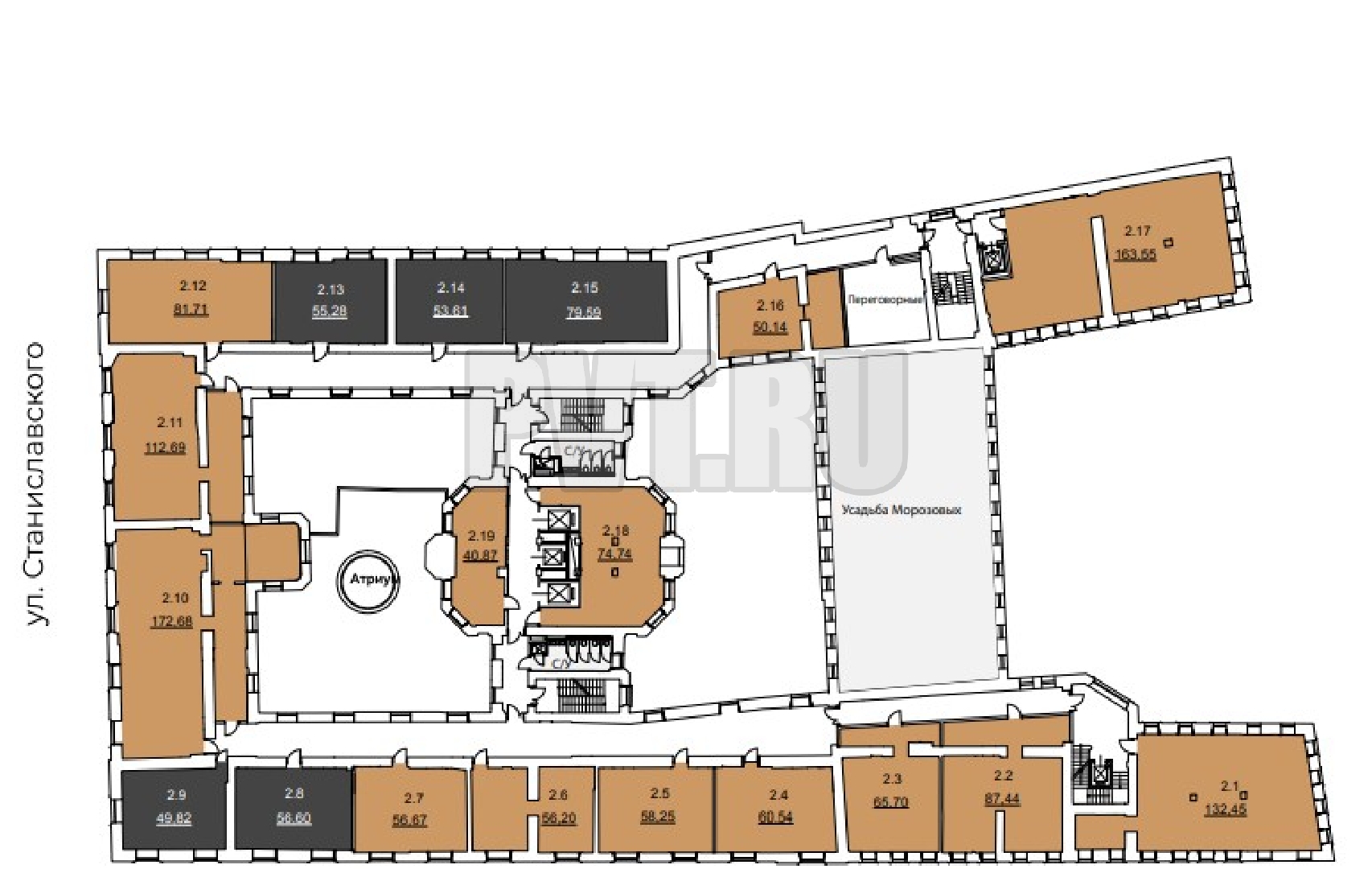
Офис, 81,7 м², открытая планировка, требуется отделка

38 763 105,99 ₽

474 398,55 ₽/м²

Связаться с нами

Коммерческие условия

Налогообложение

НДС

A

Класс

9

Налоговая

2028 г.

Год постройки

12 900 м²

Общая площадь

7 200 м²

Полезная площадь

5

Количество этажей

Вы можете записаться на просмотр интересующей вас площади