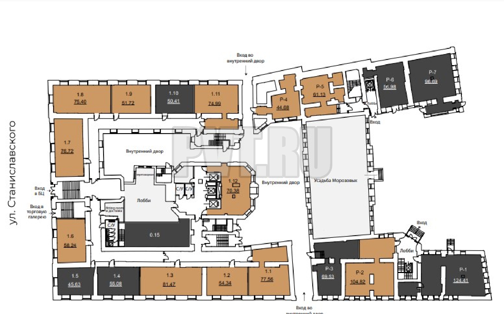
Офис, Псн, 44,7 м², открытая планировка, требуется отделка

21 063 678,69 ₽

86 429,60 ₽/м²

Связаться с нами

Коммерческие условия

Налогообложение

НДС

A

Класс

9

Налоговая

2028

Год постройки

12 900 м²

Общая площадь

7 200 м²

Полезная площадь

5

Количество этажей

Вы можете записаться на просмотр интересующей вас площади